
L'innovation au service de l’habitat
Derrière son apparente esthétique traditionnelle inspirée de
l'architecture savoyarde, le projet "La Résilience" à Sillingy, porté par
ASTER HABITAT, se révèle être une démarche novatrice tant par sa
méthode de construction que par ses performances énergétiques.
Bâtiment biosourcé certifié PASSIVHAUS, ce projet propose un habitat
sain, dont l'empreinte carbone est réduite et qui favorise une
consommation raisonnée dans le cadre d’un dispositif BRS (Bail Réel
Solidaire).
Matérialité...
Conçu en béton de bois (CCB Greentech), ce matériau innovant se
compose d'eau, de plaquettes de bois recyclées provenant de
sources locales, ainsi que d'un liant minéral garantissant résistance et
durabilité. Les murs, à la fois performants et perspirants, contribuent à
un environnement intérieur sain. Grâce à leur préfabrication, ces
éléments muraux permettent une mise en oeuvre rapide et efficace,
optimisant ainsi les délais de construction.


Concept...
L'objectif est de construire un bâtiment à bilan carbone négatif qui
respecte des critères élevés de qualité, de durabilité et de confort de
vie. Au-delà de sa qualité de construction, le projet se distingue
également par sa conception à l’approche bioclimatique et son
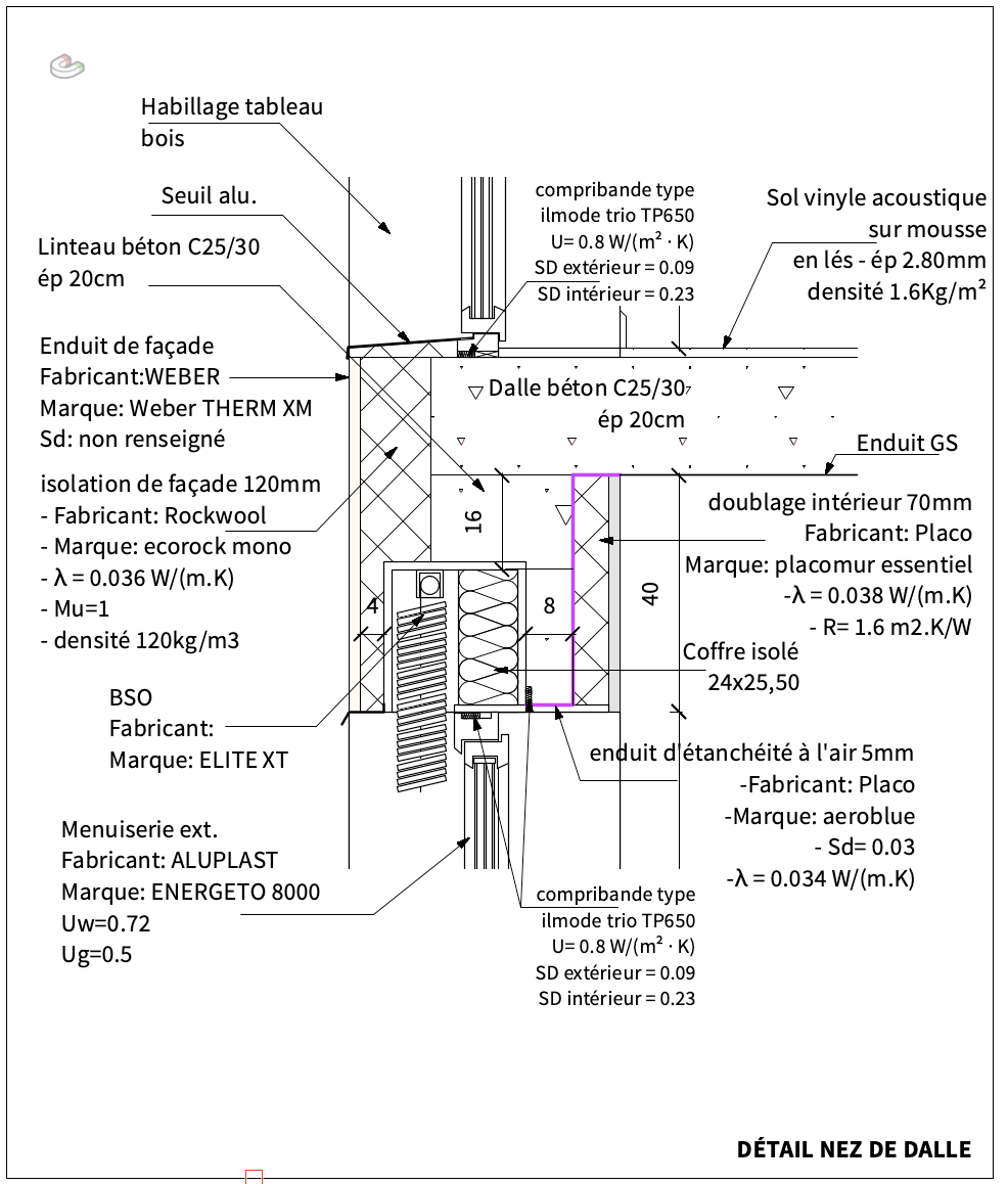
caractère passif, labellisé PASSIVHAUS. Avec une consommation de
chauffage maîtrisée de seulement 15 kWh/m²/an, ce bâtiment
consomme dix fois moins que la moyenne nationale, témoignant
d'une approche intégrée vers un habitat durable et efficient.
Typologie – Construction passive
Programme – Habitat / Logement
Localisation – Haute-Savoie
Surface de plancher – 500 m²
Montant des travaux (HT) – 1 200 000 €
Mission – Conception
Année d'étude - 2023
Livraison – 3ème trimestre 2025
Maître d’œuvre :
- Atelier D’Architectes Lanctuit – Billon – Associés
Bureaux d'études :
- La maison AUTON'HOME - Économiste/Maîtrise d’œuvre
- Plantier - B.E-Structures
- Enercobat - B.E-Thermique/Passif
- ASTI/INOGIE - B.E-Fluides
- Terra VRD - B.E-VRD









